Azizi Riviera 34

AZIZI Riviera 34, Meydan One

About this Project

Azizi Riviera 34 by Azizi Developments is a standout addition to Dubai’s residential landscape, blending elegance, comfort, and convenience. Located in Mohammed Bin Rashid City (MBR City), this remarkable mixed-use development draws inspiration from the allure of the French Riviera, offering residents a unique and luxurious lifestyle. Azizi Riviera 34 Prime Location Nestled in a prime location, Azizi Riviera 34 sits close to Meydan Racecourse, the prestigious home of the Dubai World Cup. Its central position offers easy access to Downtown Dubai and Dubai International Airport, ensuring residents can seamlessly connect to key destinations across the city. Unique Features The vibrant and engaging community of Azizi Riviera 34 includes mid-rise apartment complexes with ground-floor retail spaces. Key highlights of this development include: • A stunning 2-kilometer-long beach and crystal-clear lagoon. • A scenic avenue lined with palm trees, adding to the Riviera ambiance. • Multiple neighborhood parks for relaxation and recreation. • Onsite gyms, landscaped grounds, and swimming pools for every apartment building. Housing Options Azizi Riviera 34 provides a range of housing options, from studios to three-bedroom apartments, each designed with: • Varied scenic views, including those of the canal, Burj Khalifa, and Downtown Dubai. • Sleek, high-quality finishes and modern design. Community Amenities and Services Azizi Riviera 34 offers an extensive selection of amenities, enhancing residents' quality of life: • A variety of dining options offering diverse cuisines. • Retail outlets and convenience stores for daily essentials. • Well-maintained swimming pools and state-of-the-art fitness centers. • Beautifully landscaped gardens for relaxation. • Neighborhood parks, ideal for peaceful morning walks and evening strolls. Unit Types and Sizes Azizi Riviera 34 offers a variety of unit sizes and types to suit diverse needs: • Studio Apartments • One-Bedroom Apartments • Two-Bedroom Apartments • Three-Bedroom Apartments Azizi Riviera 34 presents a lifestyle of luxury, convenience, and comfort in one of Dubai’s most sought-after locations. With its ideal setting, unique features, and diverse housing options, it’s more than just a home; it’s a coveted address. New residents can expect a vibrant community lifestyle with endless amenities and leisure opportunities. Scheduled for completion by Q2 of 2023, Azizi Riviera 34 invites you to embrace the Riviera way of life right here in Dubai.

Construction Status

Phase
Completed
Progress
100%

Project Details

  • Type: apartment
  • Launch Date: 2018-05-01
  • Completion Date: 2023-06-01

Amenities

Security
Restaurants
Health Club
Gymnasium
Children's Play Area
Shared Pool
Leisure Lounge

Project Timeline

  • Booking Started: 01/05/2018
  • Construction Started: 02/05/2022
  • Expected Completion: 01/06/2023

Project Videos

Available unit types from developer

APARTMENT

Studio

Starting from AED 389,000
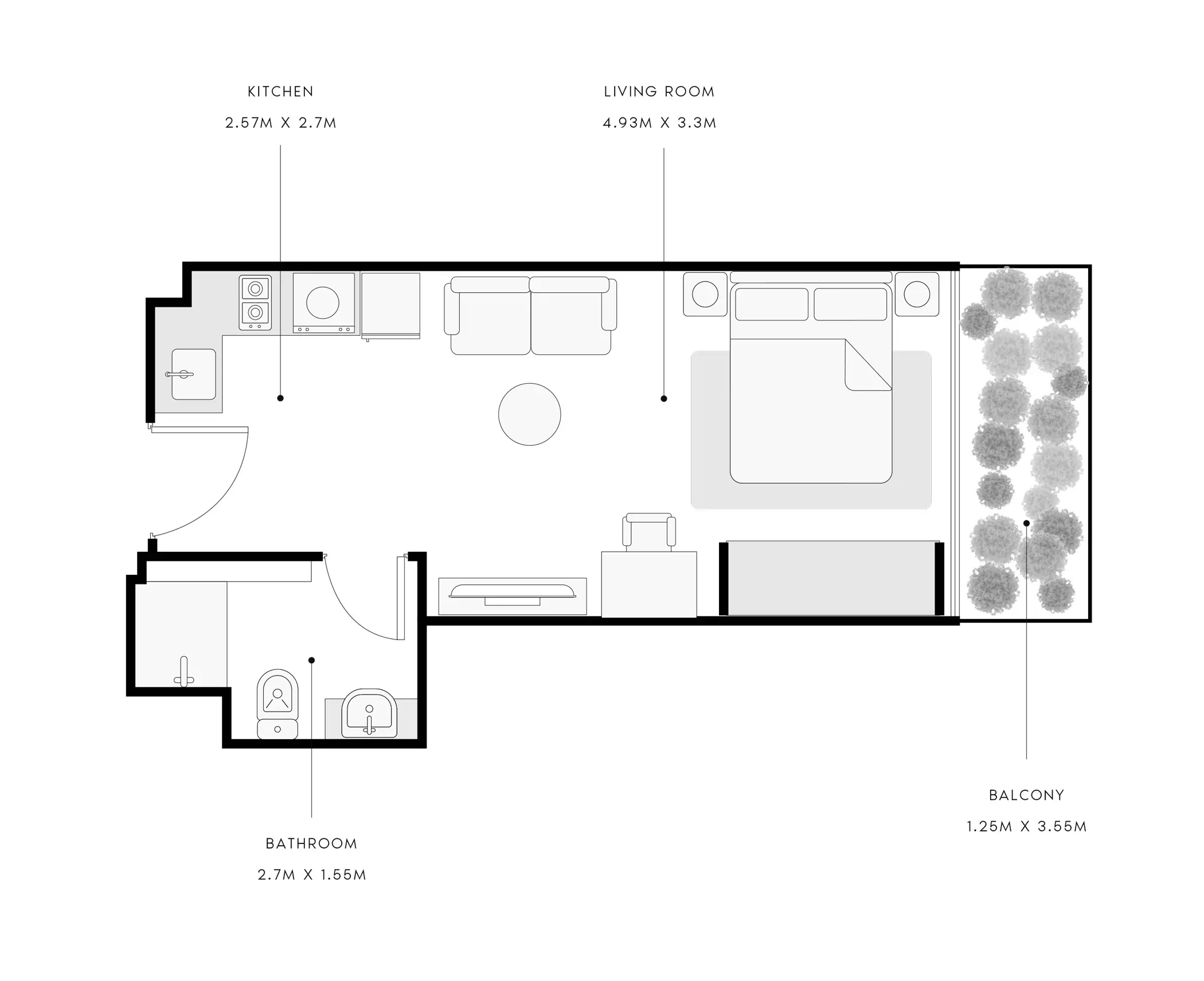
Available Layouts
Layout Type Size (sqft) Floor Plan
Type 1 A - View
Type 2 B - View
Type A 372.00 View
Type 3 - View
Type 2 A - View
Type 1 B - View

APARTMENT

1 Bedroom

Starting from AED 651,719
Available Layouts
Layout Type Size (sqft) Floor Plan
Type 2 B - View
Type 1 B - View
Type 3 A - View
Type 4 A - View
Type 2 A - View
Type 1 A - View
Type 4 B - View
Type 3 B - View

APARTMENT

2 Bedrooms

Starting from AED 389,000
Available Layouts
Layout Type Size (sqft) Floor Plan
Type 1 A - View
Type 1 B - View

APARTMENT

3 Bedrooms

Starting from AED 550,000
Available Layouts
Layout Type Size (sqft) Floor Plan
Type 1 - View
Type 2 - View

Standard

down payment
10%
10%
during construction
40%
40%
handover
50%
50%

Monthly Payment Calculator

5% 15% 25% 35% 50%
20% AED 0
Current UAE average: 3.5% - 6.5%
Monthly Payment
AED 0
Principal + Interest
Loan Amount
AED 0
Total Interest
AED 0
Total Payment
AED 0

📋 Note:

This is an estimate only. Actual rates and terms may vary based on your credit profile, bank policies, and current market conditions. Additional costs like insurance, registration fees, and bank charges are not included.

Azizi Riviera 34 Masterplan Overview Azizi Riviera 34, a key part of the Azizi Riviera masterplan, is a luxury development by Azizi Developments located in the heart of Mohammed Bin Rashid City (MBR City), Dubai. Inspired by the elegance of the French Riviera, this mixed-use community offers residents a blend of comfort, luxury, and convenience. With a prime location near Meydan Racecourse, Downtown Dubai, and Dubai International Airport, Azizi Riviera 34 provides easy access to key city destinations. The development features mid-rise apartment buildings with studios to three-bedroom units, each offering scenic views of Downtown Dubai, Burj Khalifa, or serene canal vistas. Key Features of Azizi Riviera Masterplan Location & Nearby Attractions • 1 min to Al Khail Road • 2 mins to Meydan Racecourse • 10 mins to Downtown Dubai • 15 mins to Dubai International Airport Amenities • 2km crystal lagoon & beach • Palm-lined boulevard, parks • Retail outlets, cafes, restaurants • Swimming pools, gyms, landscaped gardens

Location

AZIZI Riviera 34 , Meydan One

What is the Payment Plan of Azizi Riviera 34?

Payment Plan: 10% Down payment at sales launch 40% During construction 50% On handover

Is Azizi Riviera 34 a good investment?

Azizi Riviera 34 is a strong investment in Dubai’s Meydan area. Inspired by the French Riviera, it offers unparalleled elegance, proximity to major landmarks, and vibrant community living.

What is Azizi Riviera 34's starting price?

The starting price for Azizi Riviera 34 is 550,000 AED.

Who is the owner of Azizi Riviera 34?

Azizi Riviera 34 is developed by Azizi Developments, a reputable developer known for delivering premium projects across Dubai with quality and innovation.

When is Azizi Riviera 34's delivery date?

Azizi Riviera 34 was completed in June 2023, offering residents high-quality homes with modern designs in a prime location.

Launch Price

AED 550,000

*Prices may vary

Key Information

Handover 2023-06-01
Property Types apartment
Status Completed

Interested in this project?

Contact the developer for more details, pricing, and availability.