Celia Heights

Celia Heights, Majan

About this Project

Abou Eid Real Estate's Celia Heights Apartments at Majan is a fascinating new residential development. A variety of studio, one, and two-bedroom apartments are available in this development located in Dubailand, one of the city-state's most well-known neighborhoods. This off-plan project offers flats with horizontally structured layouts that redefine comfortable and modern living. Celia Heights's Prime Location Dubailand: Dubai's Central Region Due to its ideal location within Dubailand, Celia Heights offers easy access to all of the city's main thoroughfares and landmarks. Sheikh Mohammed Bin Zayed Road's convenience makes every trip hassle-free by putting everything you need within close reach. Delivery Date And Starting Price • Delivery Date: Jun 1, 2026 • Starting Price: 475494 AED Amenities • Swimming Pool: Unwind and rest. • Fitness Center: Use cutting-edge equipment to stay in shape. • Community areas: Meet and greet your neighbors. • All the time. Security: Providing comfort and safety. Unit Types • Studio Apartments: From 373 to 383 sqft • 1-Bedroom Apartments: From 650 to 739 sqft • 2-Bedroom Apartments: From 1105 to 1236 sqft Celia Heights Apartments at Majan by Abou Eid Real Estate stands out as a premier residential development in Dubailand. With its prime location, unique features, spacious layouts, and top-notch amenities, Celia Heights offers a lifestyle of sophistication and convenience. Whether you are looking for a studio, one-bedroom, or two-bedroom apartment, this development provides a range of options to suit your needs.

Construction Status

Phase
Under construction
Progress
51.14%

Project Details

  • Type: apartment
  • Launch Date: 2023-11-01
  • Completion Date: 2026-06-01

Amenities

Children's Play Area
Barbecue Area
Mosque
Landscaped Gardens
CCTV Security
Community Park
Shared Pool
Restaurants
Gymnasium
Security
Community Hall

Project Timeline

  • Booking Started : 01/11/2023
  • Construction Started: 21/04/2024
  • Expected Completion: 01/06/2026

Project Videos

Available unit types from developer

APARTMENT

Studio

Size: 373 - 383 sq ft
Starting from AED 475,494
Available Layouts
Layout Type Size (sqft) Floor Plan
Type A 373.00 View
Type B 383.00 -

APARTMENT

1 Bedroom

Size: 650 - 739 sq ft
Starting from AED 816,940
Available Layouts
Layout Type Size (sqft) Floor Plan
Type A 650.00 View
Type B 739.00 -

APARTMENT

2 Bedrooms

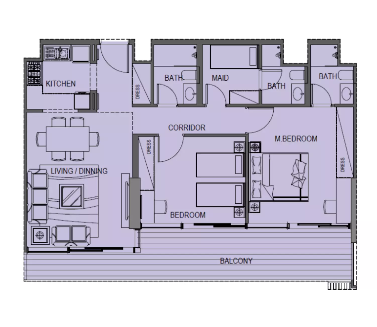
Size: 1105 - 1236 sq ft
Starting from AED 1,201,200
Available Layouts
Layout Type Size (sqft) Floor Plan
Type B 1,236.00 -
Type A 1,105.00 View

Standard

down payment
10%
10%
during construction
75%
75%
handover
15%
15%

Monthly Payment Calculator

5% 15% 25% 35% 50%
20% AED 0
Current UAE average: 3.5% - 6.5%
Monthly Payment
AED 0
Principal + Interest
Loan Amount
AED 0
Total Interest
AED 0
Total Payment
AED 0

📋 Note:

This is an estimate only. Actual rates and terms may vary based on your credit profile, bank policies, and current market conditions. Additional costs like insurance, registration fees, and bank charges are not included.

Celia Heights, Majan MasterPlan Celia Heights by Abou Eid Real Estate offers an exceptional living experience in Majan, a vibrant area of Dubailand.With its prime location, Celia Heights provides residents easy access to key areas of Dubai, including major roads like Sheikh Mohammed Bin Zayed Road. The development offers top-tier amenities, including a swimming pool, fitness center, and lush community spaces. Whether you’re seeking tranquility or convenience, Celia Heights blends both seamlessly, offering a modern and comfortable lifestyle. Its proximity to Dubai’s famous landmarks and facilities adds to the appeal, making it a highly desirable address. Celia Heights is the perfect choice for anyone looking for a sophisticated home with easy access to everything Dubai has to offer. Key Features Location • 5 Minutes to Dubai Miracle Garden • 10 Minutes to Dubai Studio City • 15 Minutes to Dubai Autodrome Amenities • Swimming pool • Fitness center • Community areas • 24/7 security

Location

Celia Heights , Majan

Is Celia Heights a good investment?

Celia Heights by Abou Eid Real Estate presents a promising investment opportunity in Majan, Dubailand. Its prime location ensures seamless connectivity to key areas of Dubai, enhancing both convenience and value. With thoughtfully designed residential units and a modern architectural style, it caters to diverse living preferences. The combination of strategic positioning and contemporary living spaces makes Celia Heights an attractive choice for those seeking long-term returns or a comfortable urban lifestyle.

What is the Payment Plan of Celia Heights?

The payment plan for Celia Heights offers flexibility for buyers. It starts with a 10% down payment at sales launch, followed by 75% during construction, and the remaining 15% on handover.

Who is the owner of Celia Heights?

Celia Heights is owned by Abou Eid Real Estate Development, a trusted name in the real estate sector known for delivering high-quality residential projects with modern designs and excellent locations.

When is Celia Heights' Delivery date?

Celia Heights is expected to be completed and delivered by June 2026. This timeline offers investors and homeowners the opportunity to acquire a modern residence in Dubailand.

What is Celia Heights' starting price?

The starting price of Celia Heights is 510K AED.

Launch Price

AED 475,494

*Prices may vary

Key Information

Handover 2026-06-01
Property Types apartment
Status Under construction

Interested in this project?

Contact the developer for more details, pricing, and availability.