Golf Ridges

Golf Ridges, Sobha Hartland

About this Project

Golf Ridges by Sobha One is more than just a residential project; it is a lifestyle statement where opulence intertwines with the allure of a premier golf lifestyle. This pre-launch development introduces an exquisite range of 4 and 5-bedroom villaments, redefining extravagance. Situated along the edges of a world-class 18-hole pitch and putt golf course, Golf Ridges offers an unrivaled residential experience. Golf Ridges Prime Location Nestled in the heart of a thriving community, Golf Ridges provides seamless connectivity to Dubai’s major roads and attractions. Whether commuting to business hubs or exploring leisure venues, residents benefit from quick access and a strategic location that places them at the center of Dubai’s vibrant life. • Connectivity: Direct access to key roads ensuring swift travel across the city. • Proximity: Close to schools, healthcare facilities, shopping centers, and entertainment hubs. Unique Features and Architectural Brilliance Golf Ridges stands as a testament to thoughtful design and architectural excellence. Developed in collaboration with a legendary golfer boasting 159 professional wins and a celebrated golf course architect, the project is a masterpiece of passion and expertise. • Private Lifts and Lobbies: Each villament is equipped with a private lift and dedicated lobby, ensuring exclusive and secure access. • Doorstep Parking: Convenient parking solutions right at your doorstep for unparalleled ease. Tranquil Living and Leisure Imagine waking up to peaceful surroundings and captivating views of golf... At Golf Ridges, tranquility is a daily affair. The development is adorned with lush flora and a captivating lagoon, providing a peaceful oasis where nature’s beauty unfolds at every turn. • Lagoon Oasis: A serene body of water surrounded by verdant landscapes offers a retreat from the city’s hustle. • Enchanting Sunsets: Daily vistas of breathtaking sunsets over the greens creating a picturesque life canvas. Villament Options: A Blend of Luxury and Comfort Golf Ridges presents an exquisite selection of villaments, each designed to offer a luxurious living experience. These residences boast spacious layouts and luxurious finishes, catering to the needs of families and individuals seeking elegance and comfort. • 4-Bedroom Villaments: • 5-Bedroom Villaments: Community Highlights and Amenities Golf Ridges is more than just a home; it is a community enriched with world-class amenities and services tailored to enhance every aspect of living. • Golf Course: An 18-hole pitch and putt course designed for all skill levels, offering a unique recreational experience. • Clubhouse and Recreational Facilities: Socialize and unwind at the exclusive clubhouse that includes dining options, fitness centers, and wellness facilities. • Children’s Play Areas: Safe and engaging spaces designed for the young residents to explore and enjoy. Advantages of Living at Golf Ridges Choosing to reside at Golf Ridges means embracing a lifestyle that marries luxury with leisure. • Exclusivity: Limited villaments ensure a tight-knit community with like-minded individuals. • Flexible Payment Plans: Tailored payment options to make acquiring your dream home a seamless process. • Security and Privacy: Gated community with round-the-clock security measures for peace of mind. Delivery Date And Starting Price • Delivery Date: Q4-2026 • Starting Price: 6,700,000 AED Unit Types • 4 Bedroom Villa • 5 Bedroom Villa With its unmatched lifestyle, Golf Ridges by Sobha One is a shining example of luxury living. It promises a comfortable, elegant, and leisurely existence with its ideal location, upscale villas, and top-notch amenities. Residents here are investing in a thriving community and a way of life that embraces elegance and peace, not just a house. At Golf Ridges, the starting point of your luxurious journey, embrace the extraordinary

Construction Status

Phase
Under construction

Project Details

  • Type: apartment
  • Completion Date: 2026-12-01

Amenities

Yoga room
Gymnasium
Shared Pool
Infinity Pool
Running Track
Well-being and Fitness
Valet Parking
Children's Play Area
Restaurants
Security
Barbecue Area

Project Timeline

  • Construction Started: 21/04/2024
  • Expected Completion: 01/12/2026

Project Videos

Available unit types from developer

APARTMENT

4 Bedrooms

Size: 2990 - 3351 sq ft
Starting from AED 6,700,000
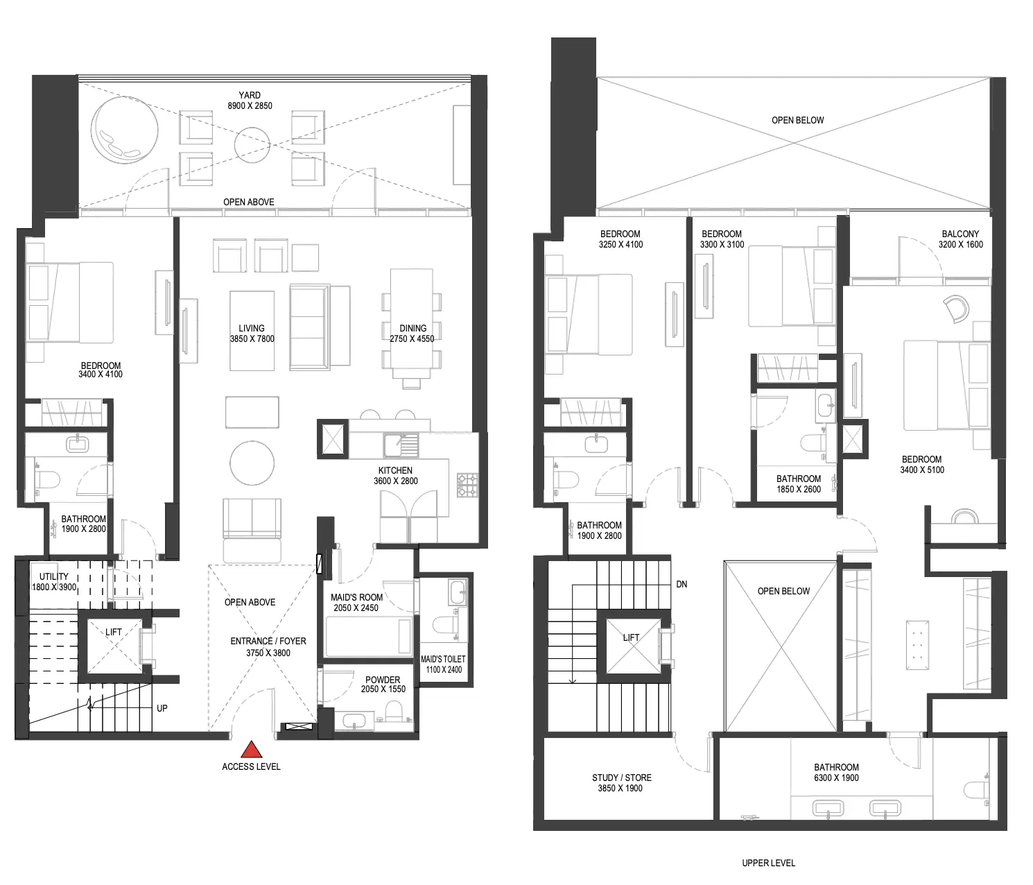
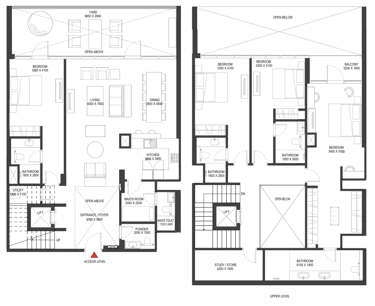
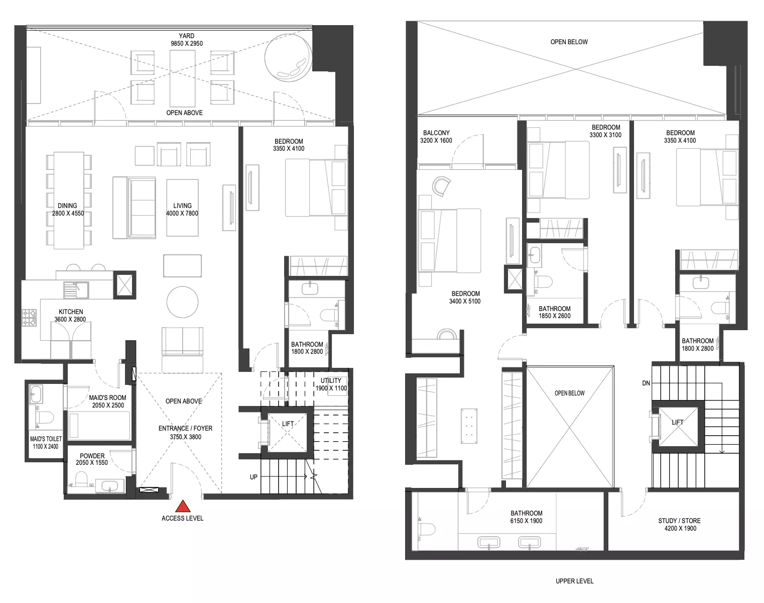
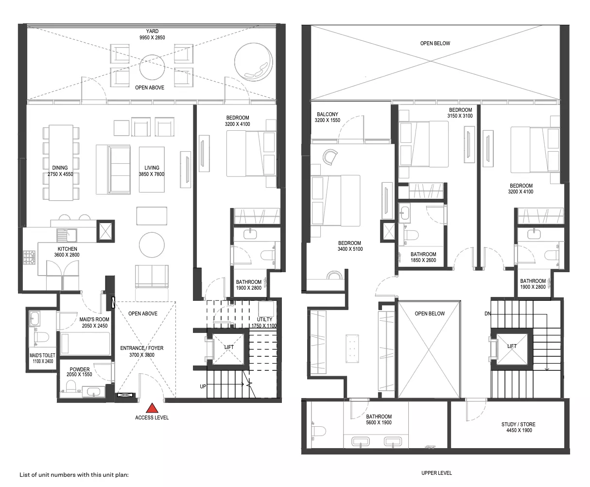
Available Layouts
Layout Type Size (sqft) Floor Plan
Type C 3,074.00 View
Type C Variant1 3,074.00 View
Type E 3,036.00 View
Type K 3,157.00 View
Type J 3,041.00 View
Type G 3,318.00 View
Type F Variant1 3,112.00 View
Type F 3,093.00 View
Type H 2,990.00 View
Type D 3,351.00 View

APARTMENT

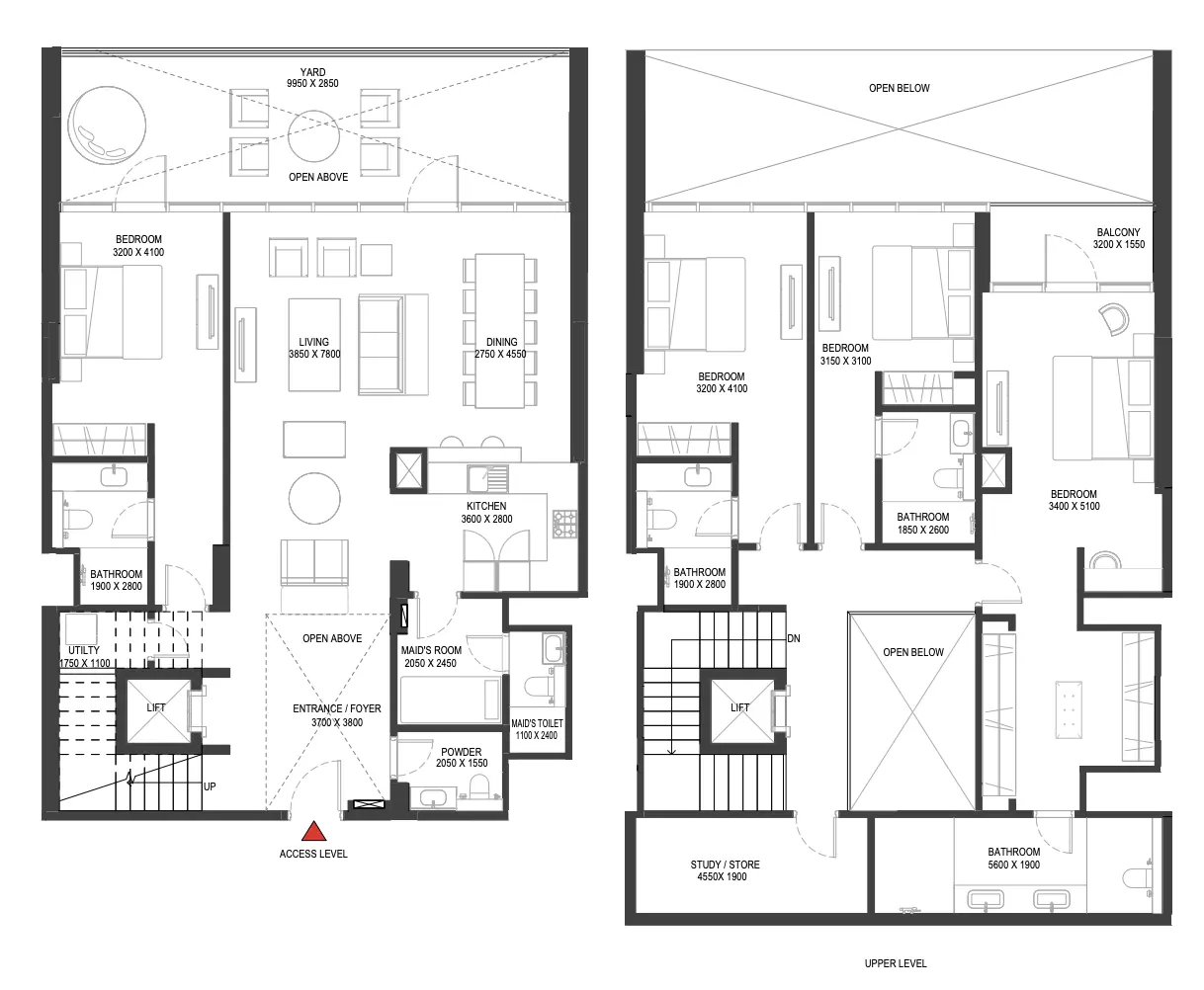
5 Bedrooms

Size: 3725 - 4844 sq ft
Starting from AED 6,700,000
Available Layouts
Layout Type Size (sqft) Floor Plan
Type A 3,725.00 View
Type C 4,831.00 View
Type B 4,844.00 View

Standard

down payment
20%
20%
during construction
40%
40%
handover
40%
40%

Monthly Payment Calculator

5% 15% 25% 35% 50%
20% AED 0
Current UAE average: 3.5% - 6.5%
Monthly Payment
AED 0
Principal + Interest
Loan Amount
AED 0
Total Interest
AED 0
Total Payment
AED 0

📋 Note:

This is an estimate only. Actual rates and terms may vary based on your credit profile, bank policies, and current market conditions. Additional costs like insurance, registration fees, and bank charges are not included.

Golf Ridges by Sobha One is an exclusive residential development within the Sobha Hartland masterplan, offering 4- and 5-bedroom villaments that blend luxury with the allure of a world-class golf lifestyle. Located along an 18-hole golf course, this stunning community provides an opulent living experience, complete with private lifts, lush greenery, and breathtaking views. With its prime location in MBR City, residents enjoy seamless access to major roads and Dubai’s iconic attractions. Part of the larger Sobha Hartland masterplan, Golf Ridges ensures a lifestyle of tranquility and exclusivity, with access to a range of world-class amenities including a clubhouse, recreational facilities, and children's play areas. Its serene surroundings, complemented by a lagoon oasis and scenic sunsets, make it an ideal choice for those seeking a refined lifestyle. Key Features Location & Nearby Attractions • 5 MINUTES to Burj Khalifa • 20 MINUTES to Dubai International Airport • 10 MINUTES to DIFC • 5 MINUTES to Meydan Golf Course • 5 MINUTES to Dubai Mall • 5 MINUTES to Meydan Race Course • 5 MINUTES to Ras Al Khor Wildlife Sanctuary Amenities • 18-Hole Golf Course • Clubhouse & Dining Options • Fitness & Wellness Centers • Swimming Pool • Private Parking • Lush Gardens & Parks • Security & Gated Community

Location

Golf Ridges , Sobha Hartland

Who is the owner of Golf Ridges?

Golf Ridges is owned by Sobha Realty, a renowned developer in the UAE, known for delivering luxury residential projects with exceptional design and quality craftsmanship.

What is Golf Ridges's starting price?

The starting price of Golf Ridges is 6.7M AED.

What is the Payment Plan of Golf Ridges?

The payment plan for Golf Ridges is structured as follows: • 20% down payment at the sales launch. • 40% during construction. • 40% on handover.

Is Golf Ridges a good investment?

Golf Ridges is a strong investment opportunity due to its prime location, luxury offerings, and comprehensive amenities. Situated alongside a world-class 18-hole golf course, it appeals to golf enthusiasts and those seeking an exclusive lifestyle. The development offers spacious 4 and 5-bedroom villaments, featuring private lifts, doorstep parking, and scenic views of lush landscapes and a tranquil lagoon. With a limited number of homes, Golf Ridges ensures an exclusive community atmosphere. The proximity to key roads, shopping, and entertainment hubs, combined with excellent recreational amenities like a clubhouse and fitness centers, makes this a highly attractive investment. The future demand for luxury properties in such a serene, prestigious location promises strong returns.

When is Golf Ridges's Delivery date?

The delivery date for Golf Ridges is set for December 2026. This timeline ensures that residents will experience top-quality construction and fully developed amenities upon completion.

Launch Price

AED 6,700,000

*Prices may vary

Key Information

Handover 2026-12-01
Property Types apartment
Status Under construction

Developer

Interested in this project?

Contact the developer for more details, pricing, and availability.