Narenj

Narenj, Masaar

About this Project

Narenj at Masaar Phase 2, Sharjah is the second residential launch within the leisure community, crafted with love by the renowned Arada Developer lined with premium 2 to 4-bedroom townhouses and 4 & 5-bedroom forest signature villas. This newest condominium brings modern living and peacefulness of nature together, specifically designed to integrate luxury of urban living with the peaceful ambiance in forest surroundings. Through beautifully created residences, it is a call to live life the way one has always desired - centered around wellness, seclusion and camaraderie. Each house is carefully crafted with modern architecture, intelligent high-tech and high-end features that provide a chic but relaxed living experience. Situated on a master-planned Masaar 2 community, the elegant designed residences are designed with high-end detail and architecture to presents a unique excellence within the region. Although, design with a focus in mind to let families and individuals balancing out luxury and nature for meaningful lifestyles. Enjoy floor-to-ceiling windows, private gardens and seamless indoor/outdoor living spaces or take pleasure of surrounding serene ambiance. The community is concerned about sustainability as seen in its eco-friendly design, tree-lined pathways, landscapes and natural elements create a setting that encourages relaxation and well-being in the community. One of the defining characteristics of the façade is its cohesion within the grander phase two community, enabling its residents to benefit from a wide array of international standard facilities. A central forest lagoon with a waterfall establishes a leisurely and recreational atmosphere, while designated wellness areas, outdoor fitness zones, cycling and jogging trails ensures that residents stay active. The community also offers a clubhouse, an outdoor cinema, retail shops and dining, with every need within close proximity to home.

Construction Status

Phase
Under construction

Project Details

  • Type: townhouse, villa
  • Completion Date: 2027-12-01

Amenities

CCTV Security
Gymnasium
Children's Play Area
Restaurants
Landscaped Gardens
Indoor Swimming Pool

Project Timeline

  • Construction Started: 11/03/2025
  • Expected Completion : 01/12/2027

Available unit types from developer

TOWNHOUSE

2 Bedrooms

Size: 1856 sq ft
Starting from AED 1,500,000
Available Layouts
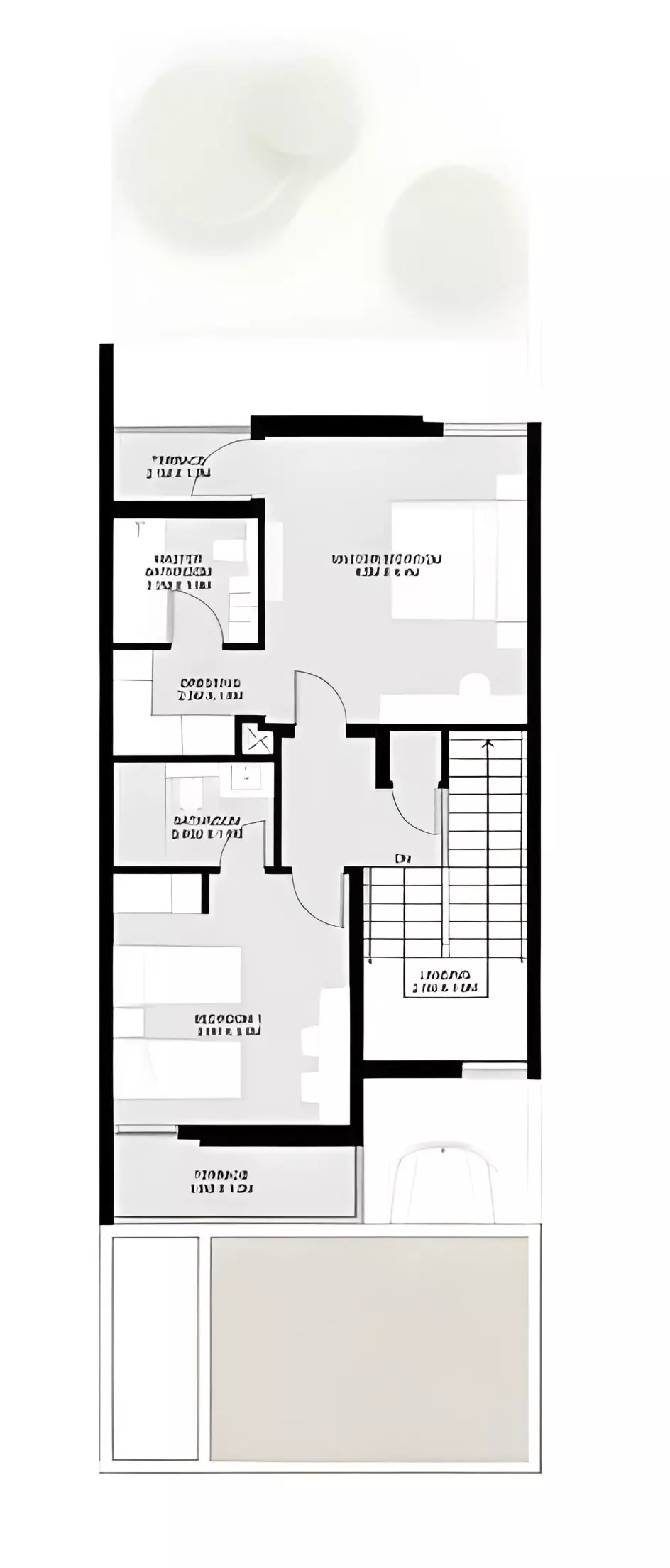
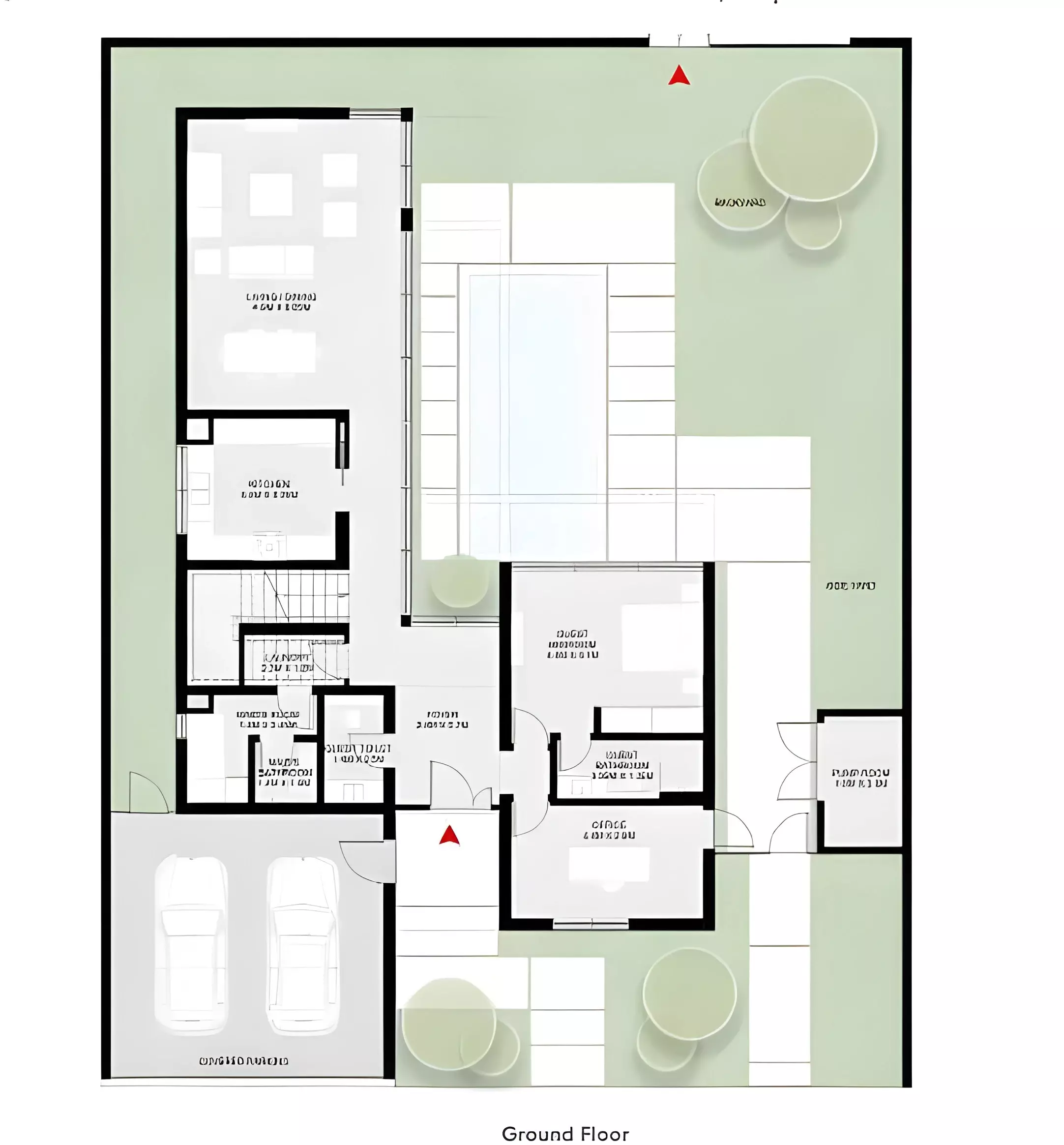
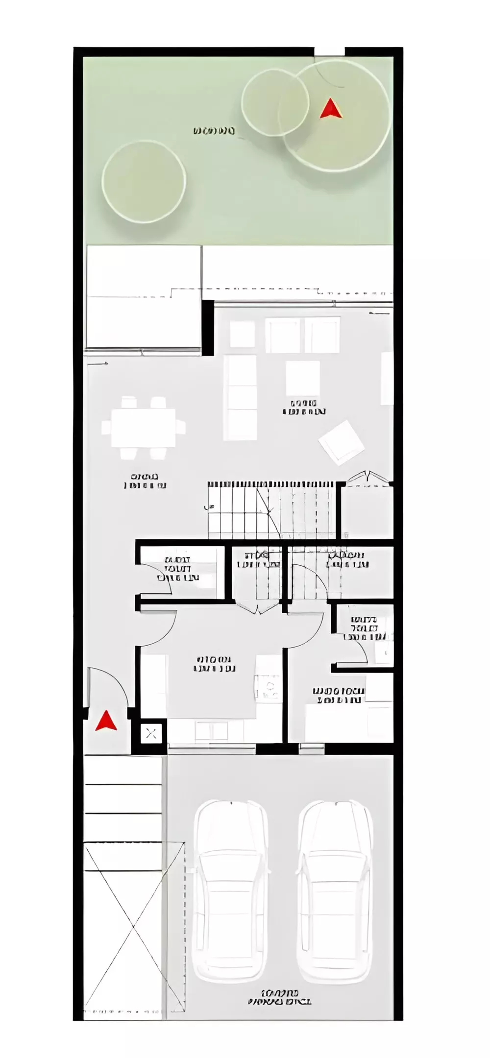
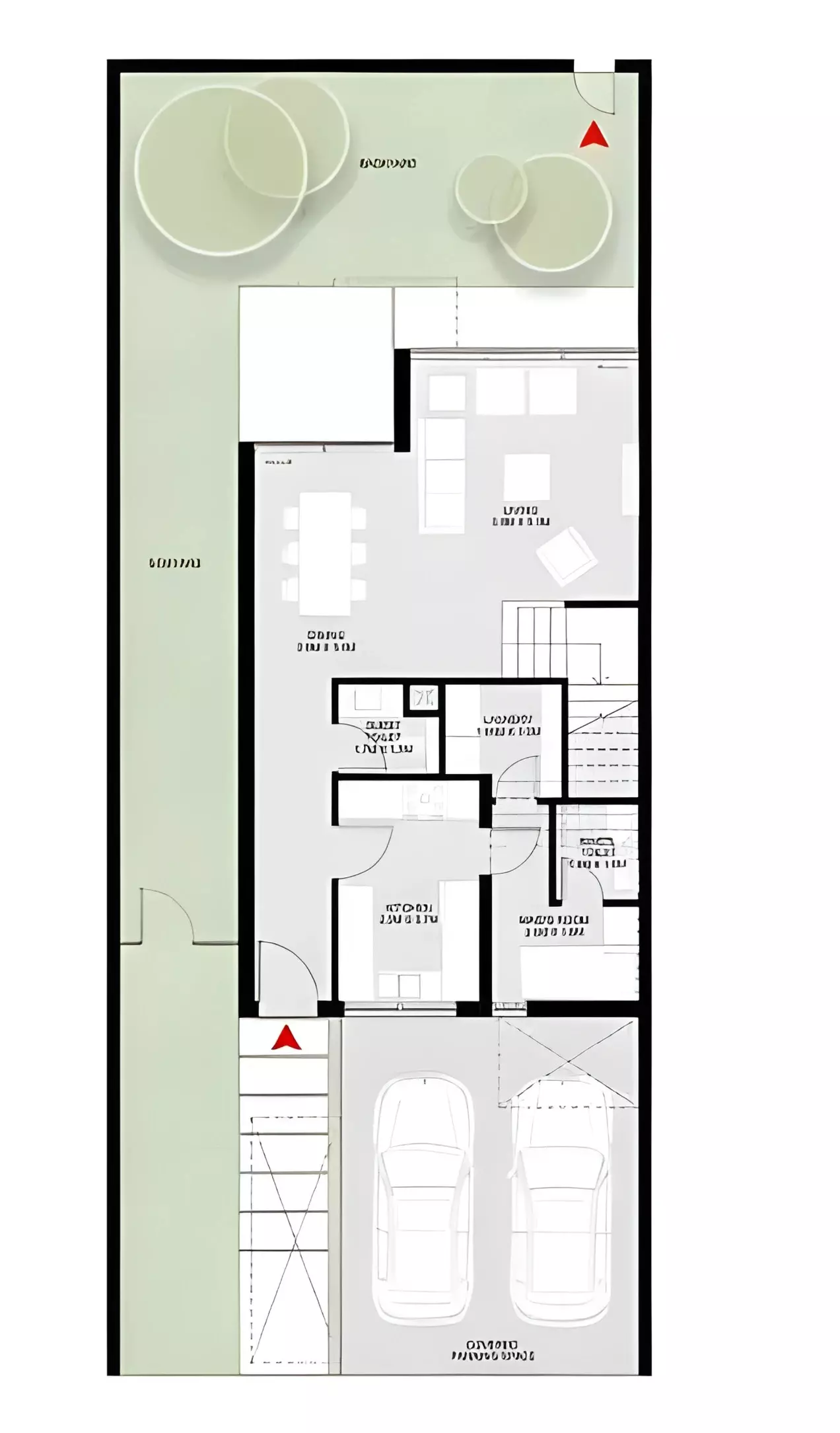
Layout Type Size (sqft) Floor Plan
Type A 1,856.00 View

TOWNHOUSE

3 Bedrooms

Size: 2117 - 2156 sq ft
Starting from AED 1,500,000
Available Layouts
Layout Type Size (sqft) Floor Plan
Type A 2,117.00 View
Type B 2,156.00 View

TOWNHOUSE

4 Bedrooms

Size: 2660 - 3771 sq ft
Starting from AED 1,500,000
Available Layouts
Layout Type Size (sqft) Floor Plan
Type B 3,205.00 View
Type A 2,660.00 View
Type C 3,771.00 View

VILLA

Studio

Size: 5878 sq ft
Starting from AED 1,500,000
Available Layouts
Layout Type Size (sqft) Floor Plan
Type B 5,878.00 View

VILLA

5 Bedrooms

Size: 4686 sq ft
Starting from AED 1,500,000
Available Layouts
Layout Type Size (sqft) Floor Plan
Type A 4,686.00 View

Option 1

down payment
5%
5%
during construction
35%
35%
handover
60%
60%

Option 2

down payment
5%
On Booking Date 5%
during construction
35%
Within 30 days from booking date 5%
Within 5 months from booking date 5%
Within 9 months from booking date 5%
Within 13 months from booking date 5%
Within 17 months from booking date 5%
Within 22 months from booking date 5%
Within 28 months from booking date 5%
handover
60%
On Handover 60%

Monthly Payment Calculator

5% 15% 25% 35% 50%
20% AED 0
Current UAE average: 3.5% - 6.5%
Monthly Payment
AED 0
Principal + Interest
Loan Amount
AED 0
Total Interest
AED 0
Total Payment
AED 0

📋 Note:

This is an estimate only. Actual rates and terms may vary based on your credit profile, bank policies, and current market conditions. Additional costs like insurance, registration fees, and bank charges are not included.

Location

Narenj , Masaar

What is Narenj's starting price?

Narenj's starting price is AED 1,500,000.

What are the housing options of Narenj?

Narenj offers a variety of housing options designed to suit different family sizes and lifestyles, including townhouses and villas. The townhouses come in three configurations: 2-bedroom units sized at 1,856 square feet, 3-bedroom units ranging between 2,117 and 2,156 square feet, and spacious 4-bedroom units varying from 2,660 to 3,771 square feet. These townhouses provide a modern, comfortable living environment with well-planned layouts. For those seeking larger homes, Narenj also features villas. The villa options include a studio-sized villa of 5,878 square feet, offering expansive living space, and a 5-bedroom villa measuring 4,686 square feet, ideal for bigger families or those who desire more privacy and luxury. While specific prices for each unit type are not listed, the range of sizes and layouts ensures there is a suitable home for different needs within the community, combining luxury and nature seamlessly.

Is Narenj Freehold or leasehold?

Narenj is a freehold development, allowing buyers full ownership rights of their property without lease restrictions.

Who is the owner of Narenj?

Narenj is developed and owned by ARADA, a leading real estate company known for creating high-quality residential communities with a focus on modern design and sustainable living.

Is Narenj a good investment?

Yes, Narenj at Masaar Phase 2 is a strong real estate investment due to its combination of high-quality construction, strategic location, and premium lifestyle features. Developed by Arada, a respected name in the UAE, Narenj offers modern 2 to 5-bedroom homes designed with smart technology, floor-to-ceiling windows, and private gardens that blend indoor and outdoor living. The community emphasizes wellness and sustainability, featuring tree-lined pathways, a central forest lagoon with a waterfall, outdoor fitness zones, and dedicated cycling and jogging trails. Residents also benefit from access to a clubhouse, retail outlets, dining venues, and an outdoor cinema—all within a self-contained, eco-conscious neighborhood. These amenities, along with its natural forest setting and high rental appeal, make Narenj a solid long-term investment.

What is the Payment Plan of Narenj ?

Narenj offers two payment plan options: Option 1: • 5% Down Payment – Due at the time of sales launch • 35% During Construction – Paid in scheduled installments while the project is being built • 60% On Handover – Paid when the property is delivered Option 2: • 5% Down Payment – Due at the time of sales launch • 35% During Construction – Divided into 7 equal installments • 60% On Handover – Paid when the property is delivered Both options allow flexibility during the construction period, with the majority (60%) due at handover.

Where is Narenj Located?

Narenj is located in Tilal City, Sharjah, offering easy access to key areas and a peaceful community environment.

When is Narenj's Delivery date?

The delivery date for Narenj is set for Dec 1, 2027. This timeline reflects the developer’s commitment to completing the project on schedule, ensuring residents can move in without delays.

Launch Price

AED 1,500,000

*Prices may vary

Key Information

Handover 2027-12-01
Property Types townhouse, villa
Status Under construction

Developer

Interested in this project?

Contact the developer for more details, pricing, and availability.