بلود هایتس پودیوم

BLVD Heights Podium, BLVD Heights

درباره این پروژه

بلود هایتس پودیوم، یک پروژه مسکونی نفس‌گیر از شرکت اعمار پراپرتیز، تعریف جدیدی از زندگی شهری مجلل ارائه می‌دهد. این پروژه که در قلب مرکز شهر دبی واقع شده است، با تلفیق ظرافت مدرن، آرامش شهری و آسایش بی‌نظیر، یک سبک زندگی واقعاً قابل توجه را ارائه می‌دهد. فضاهای داخلی لوکس: یک کلاس مجزا همه چیز در مورد بلود هایتس حس تجمل را القا می‌کند. فضای مجلل و شیک ورودی بزرگ از شما استقبال می‌کند و لحن بقیه پروژه را تعیین می‌کند. پنجره‌های سرتاسری آپارتمان‌ها و خانه‌های شهری، حس باز بودن و نور را افزایش می‌دهند و سطوح بافت‌دار و رنگ‌های ملایم، ظاهری مجلل را تضمین می‌کنند. چیدمان برنامه‌ریزی‌شده فضاهای داخلی با پلان باز شامل فضای ذخیره‌سازی زیادی است. حمام‌ها و آشپزخانه‌های لوکس و سفارشی، انحصاری بودن دکور را بیشتر می‌کنند. پنت‌هاوس‌های باشکوه در تاج برج، از عرشه‌های خصوصی بیرونی خود، مناظر ممتازی از "مرکز اکنون" ارائه می‌دهند و نیازهای کسانی را که به دنبال نهایت تجمل هستند، برآورده می‌کنند. موقعیت مکانی عالی بلود هایتس پودیوم بلود هایتس که در کنار بلوار پرجنب‌وجوش محمد بن راشد قرار دارد، مناظری وسیع از مرکز شهر دبی را ارائه می‌دهد. این محله که میزبان غذاخوری‌های برنده جایزه مانند La Serre و Toko است، به‌طور یکپارچه در این پروژه گنجانده شده است. ساکنان می‌توانند به لطف طراحی مناسب عابر پیاده، به راحتی به مقاصد اصلی در مرکز شهر دبی، مانند دبی مال، فواره دبی و سوق البحار دسترسی داشته باشند. ساکنان در مجاورت The Palace Downtown Dubai و Armani Hotel دسترسی دائمی به خدمات پنج ستاره دارند. • دسترسی و اتصال در قلب شهر: این پروژه از طریق شبکه‌های جاده‌ای برتر و اتصال حمل‌ونقل عالی مستقیماً به سیستم بزرگراه اصلی دبی متصل است و دسترسی به جوامع همسایه را آسان می‌کند. انواع واحدها گزینه‌های مختلف مسکن در بلود هایتس پودیوم در دسترس است که همگی دارای سبک‌های معماری مدرن و پرداخت‌های ممتاز هستند. از جمله این پروژه‌ها عبارتند از: • - آپارتمان‌های 1 خوابه از 836 فوت مربع تا 1112 فوت مربع • - آپارتمان‌های 2 خوابه از 1380 فوت مربع تا 2674 فوت مربع • - آپارتمان‌های 3 خوابه از 1816 فوت مربع تا 2813 فوت مربع • - آپارتمان‌های 4 خوابه از 4535 فوت مربع تا 6792 فوت مربع امکانات رفاهی ساکنان بلود هایتس پودیوم به انواع امکانات و خدماتی دسترسی خواهند داشت که به هر جنبه از زندگی لوکس به عنوان بخشی از این پروژه مشهور می‌پردازند. از جمله آنها عبارتند از: • مرکز تناسب اندام پیشرفته • استخرهای شنا • مناطق بازی کودکان • فروشگاه‌های خرده فروشی • گزینه‌های غذاخوری • امنیت 24/7 • پارکینگ اختصاصی تاریخ تحویل • تاریخ تحویل: سه ماهه سوم 2023 تجمل، آسایش و آسایشی که مشخصه یک پروژه از شرکت اعمار پراپرتیز است، در بلود هایتس پودیوم تجسم یافته است. این پروژه به دلیل موقعیت عالی، تنوع گزینه‌های مسکن و امکانات درجه یک، گزینه بسیار خوبی برای سرمایه‌گذاران و صاحبان خانه است. این پروژه یک سبک زندگی مجلل بی‌نظیر را نوید می‌دهد. زندگی در بلود هایتس پودیوم سرمایه‌گذاری در یک سبک زندگی مجلل و راحت درست در وسط شهر است، نه فقط خرید ملک.

وضعیت ساخت

مرحله
تکمیل شده

جزئیات پروژه

  • نوع: apartment
  • تاریخ عرضه: 2015-12-01
  • تاریخ تکمیل: 2023-09-01

امکانات

Children's Play Area
Gymnasium
Health Club
CCTV Security
Shared Pool
Security

جدول زمانی پروژه

  • Booking Started: 01/12/2015
  • Construction Started: 16/03/2022
  • Expected Completion: 01/09/2023

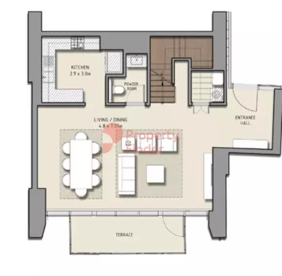
انواع واحد موجود از سازنده

APARTMENT

1 Bedroom

Size: 872 - 1112 sq ft
شروع از ‎درهم ۲٬۰۹۲٬۸۸۸
Available Layouts
Layout Type Size (sqft) Floor Plan
Podium Unit 303 923.00 View
podium Type F 947.00 View
Podium Type D 906.00 View
Podium Type E 943.00 View
Podium Unit 204 1,112.00 View
podium Unit 107 927.00 View
Podium Unit 203 1,036.00 View
Podium Unit 3031 924.00 View
Pudium Unit 110 931.00 View
Podium Unit 304 872.00 View

APARTMENT

2 Bedrooms

Size: 1563 - 2337 sq ft
شروع از ‎درهم ۲٬۰۹۲٬۸۸۸
Available Layouts
Layout Type Size (sqft) Floor Plan
Podium Type B7 2,240.00 View
Podium Type B10 2,319.00 View
Podium Type C1 2,337.00 View
Podium Type C3 1,935.00 View
Podium Type C4 1,623.00 View
Podium Type B8 1,704.00 View
podium Type B9 1,932.00 View
Pdoium Type C6 1,624.00 View
Podium Type C7 1,563.00 View
Podium Type C8 1,623.00 View
Podium Type C2 1,706.00 View
PodiumType B4 1,637.00 View
Podium Type A10 1,697.00 View
Podium Type B2 1,822.00 View
Podium Type B3 1,707.00 View
Podium Type B1 1,636.00 View
Podium Type B5 2,020.00 View
Podium Type B6 2,110.00 View

APARTMENT

3 Bedrooms

Size: 1816 - 2815 sq ft
شروع از ‎درهم ۲٬۰۹۲٬۸۸۸
Available Layouts
Layout Type Size (sqft) Floor Plan
Podium Type C9 2,648.00 View
Podium Type E5 2,530.00 View
Podium Type E2 2,710.00 View
Tower 1 Type D4 2,685.00 View
Podium Type D8 1,816.00 View
PodiumType D6 2,319.00 View
Podium Type E3 2,807.00 View
Podium Type E4 2,767.00 View
Podium Type D9 2,314.00 View
Podium Type D7 2,458.00 View
Podium Type D10 2,509.00 View
Podium Type E6 2,815.00 View

APARTMENT

1 Bedroom

Size: 836 - 925 sq ft
شروع از ‎درهم ۲٬۰۹۲٬۸۸۸
Available Layouts
Layout Type Size (sqft) Floor Plan
Tower 1 Type A 897.00 View
Tower 1 Type B 925.00 View
Tower 1 Type C 836.00 View
Tower 1 Unit 3041 856.00 View

APARTMENT

2 Bedrooms

Size: 1380 - 2674 sq ft
شروع از ‎درهم ۲٬۰۹۲٬۸۸۸
Available Layouts
Layout Type Size (sqft) Floor Plan
Tower 1 Unit 01 1,722.00 View
Tower 1 Unit 01 Unit 05 1,596.00 View
Tower 1 Unit 011 2,674.00 View
Tower 1-Unit 02 1,636.00 View
Tower 1 Type A2 2,318.00 View
Tower 1 Type A1 1,593.00 View
Tower 1 Type A4 1,748.00 View
Tower 1 Type A5 2,453.00 View
Tower 1 Type A7 1,570.00 View
Tower 1 A9 1,380.00 View
Tower 1 Type A8 1,680.00 View
Tower 1 Type A3 1,636.00 View
Tower 1 Unit 01 1,671.00 View

APARTMENT

3 Bedrooms

Size: 2525 - 2780 sq ft
شروع از ‎درهم ۲٬۰۹۲٬۸۸۸
Available Layouts
Layout Type Size (sqft) Floor Plan
Tower 1 Type C10 2,581.00 View
Tower 1Type C1 2,780.00 View
Tower 1 Type D2 2,529.00 View
Tower 1 Type D4 2,685.00 View
Tower 1 Type D5 2,525.00 View

APARTMENT

4 Bedrooms

Size: 6792 sq ft
شروع از ‎درهم ۲٬۰۹۲٬۸۸۸
Available Layouts
Layout Type Size (sqft) Floor Plan
Tower 1 Type E7 6,792.00 -

APARTMENT

Studio

Size: 836 - 856 sq ft
شروع از ‎درهم ۲٬۰۹۲٬۸۸۸
Available Layouts
Layout Type Size (sqft) Floor Plan
Tower 2 Type C 836.00 View
Tower 2 Unit 3041 856.00 View

APARTMENT

1 Bedroom

Size: 897 sq ft
شروع از ‎درهم ۲٬۰۹۲٬۸۸۸
Available Layouts
Layout Type Size (sqft) Floor Plan
Tower 2 Type A 897.00 View

APARTMENT

2 Bedrooms

Size: 1380 - 2453 sq ft
شروع از ‎درهم ۲٬۰۹۲٬۸۸۸
Available Layouts
Layout Type Size (sqft) Floor Plan
Tower 2 Unit 012 1,722.00 View
Tower 2 Type A6 2,453.00 View
Tower 2 Unit 01 Unit 05 1,596.00 View
Tower 2 Unit 01 1,671.00 View
Tower 2 Type A7 1,570.00 View
Tower 2 Type A1 1,593.00 View
Tower 2 Type A8 1,680.00 View
Tower 2 Type A9 1,380.00 View

APARTMENT

3 Bedrooms

Size: 2579 sq ft
شروع از ‎درهم ۲٬۰۹۲٬۸۸۸
Available Layouts
Layout Type Size (sqft) Floor Plan
Tower 2 Type D3 2,579.00 View

Standard

down payment
20%
20%
handover
80%
80%

ماشین حساب پرداخت ماهانه

5% 15% 25% 35% 50%
20% AED 0
میانگین فعلی امارات: ۳.۵٪ - ۶.۵٪
پرداخت ماهانه
AED 0
اصل + بهره
مبلغ وام
AED 0
کل بهره
AED 0
کل پرداخت
AED 0

📋 توجه:

این فقط یک تخمین است. نرخ‌ها و شرایط واقعی ممکن است بر اساس پروفایل اعتباری، سیاست‌های بانکی و شرایط فعلی بازار متفاوت باشد. هزینه‌های اضافی مانند بیمه، هزینه ثبت و کارمزد بانکی شامل نمی‌شود.

بلود هایتس پودیوم توسط اعمار پراپرتیز، زندگی شهری لوکس را در قلب مرکز شهر دبی ارائه می‌دهد. این پروژه دارای آپارتمان‌های مدرن 1 تا 4 خوابه با پرداخت‌های درجه یک و چیدمان‌های گسترده است. ساکنان با قرار گرفتن در کنار بلوار محمد بن راشد، از مناظر خیره‌کننده مرکز شهر دبی و دسترسی آسان به دبی مال، اپرای دبی و فواره دبی لذت می‌برند. این مجموعه طیف گسترده‌ای از امکانات رفاهی، از جمله مرکز تناسب اندام، استخرهای شنا و فروشگاه‌های خرده‌فروشی را ارائه می‌دهد. بلود هایتس پودیوم هم آسایش و هم راحتی را با اتصال عالی به سایر مناطق شهر ارائه می‌دهد. ویژگی‌های کلیدی امکانات رفاهی • مرکز تناسب اندام • استخرهای شنا • فروشگاه‌های خرده فروشی • امنیت 24/7 • منطقه بازی کودکان موقعیت مکانی و جاذبه‌های نزدیک • 6 دقیقه تا دبی مال • 2 دقیقه تا برج خلیفه و فواره دبی

موقعیت مکانی

BLVD Heights Podium , BLVD Heights

آیا بلود هایتس پودیوم یک سرمایه‌گذاری خوب است؟

بلود هایتس پودیوم به دلیل موقعیت مکانی عالی در مرکز شهر دبی، نزدیک به نقاط دیدنی کلیدی مانند دبی مال و فواره دبی، یک سرمایه‌گذاری قوی ارائه می‌دهد. تجربه زندگی لوکس، همراه با پرداخت‌های ممتاز و امکانات درجه یک، ارزش بلندمدت قابل توجهی به ملک می‌بخشد.

مالک بلود هایتس پودیوم کیست؟

مالک بلود هایتس پودیوم، شرکت اعمار پراپرتیز است، یک توسعه‌دهنده پیشرو که به دلیل ایجاد جوامع مسکونی لوکس با طراحی استثنایی و موقعیت‌های مکانی عالی مشهور است.

قیمت اولیه بلود هایتس پودیوم چقدر است؟

قیمت اولیه: 2,100,000 درهم امارات.

تاریخ تحویل بلود هایتس پودیوم چه زمانی است؟

تاریخ تحویل بلود هایتس پودیوم در سه ماهه سوم سال 2023 بود که یک فضای زندگی لوکس کاملاً تکمیل شده و آماده نقل مکان را در مرکز شهر دبی به سرمایه‌گذاران ارائه می‌دهد.

طرح پرداخت بلود هایتس پودیوم چیست؟

پیش پرداخت: 20% در زمان عرضه فروش در زمان تحویل: 80%

قیمت عرضه

‎درهم ۲٬۰۹۲٬۸۸۸

*قیمت‌ها ممکن است متفاوت باشند

اطلاعات کلیدی

تحویل 2023-09-01
انواع ملک apartment
وضعیت تکمیل شده

سازنده

به این پروژه علاقه‌مند هستید؟

برای جزئیات بیشتر، قیمت و موجودی با سازنده تماس بگیرید.