یوتوپیا

Utopia Damac Hills Villas, DAMAC Hills

درباره این پروژه

به یوتوپیا خوش آمدید، یک پروژه مسکونی نوآورانه از شرکت داماك پر properties، واقع در جامعه پر جنب و جوش داماك هیلز، دبی. یوتوپیا مجموعه‌ای از ویلاهای نفیس 5، 6 و 7 خوابه را ارائه می‌دهد که برای ارائه یک تجربه زندگی به سبک استراحتگاه شهری طراحی شده‌اند. این پروژه منحصر به فرد لوکس، مدرنیته و پایداری را با هم ترکیب می‌کند و یک سبک زندگی تماشایی را برای ساکنان خود تضمین می‌کند. موقعیت مکانی یوتوپیا یوتوپیا در جامعه کاملاً توسعه یافته داماك هیلز واقع شده است که به خاطر فضای سبز سرسبز، امکانات رفاهی در سطح جهانی و دسترسی آسان خود شناخته شده است. این پروژه به راحتی در نزدیکی نقاط دیدنی و امکانات رفاهی مهم واقع شده است و آن را به یک انتخاب عالی برای خانواده ها و متخصصان تبدیل می کند. • نزدیکی به خیابان حصه: دسترسی آسان به بزرگراه های اصلی و بقیه دبی را فراهم می کند. • زمین گلف در نزدیکی: ایده آل برای علاقه مندان به گلف که به دنبال یک سبک زندگی سطح بالا هستند. • نزدیک به هتل ها و استراحتگاه ها: از مهمان نوازی در سطح جهانی درست در خارج از درب منزل خود لذت ببرید. ویژگی های منحصر به فرد یوتوپیا یوتوپیا خود را با ویلاهای الهام گرفته از استراحتگاه و مجموعه ای از ویژگی های استثنایی که مطابق با ترجیحات سبک زندگی مدرن است، متمایز می کند. • ویلاهای با ظرافت ساخته شده: از بین ویلاهای 5، 6 و 7 خوابه انتخاب کنید که همگی به زیبایی با خلاقیت و لوکس طراحی شده اند. • نسخه محدود: فقط 27 ویلای مدرن، که هر کدام دارای عناصر طبیعی منحصر به فرد و طرح های نوآورانه هستند. • جاذبه های اجتماعی: از جاذبه های اجتماعی مانند ساحل مالیبو، هیلز مال و تالاب های شفاف لذت ببرید. • سبک زندگی عالی: از امکانات رفاهی در سطح جهانی لذت ببرید که سطح زندگی شما را ارتقا می بخشد. گزینه های مسکن یوتوپیا دارای انواع ویلاهای جادار و مجلل است که هر کدام برای ایجاد آسایش، ظرافت و یک محیط زندگی آرام طراحی شده اند. • ویلاهای 5 خوابه • ایده آل برای خانواده ها: جادار و با طراحی زیبا، مناسب برای خانواده های بزرگتر. • ویلاهای 6 خوابه • زندگی لوکس: فضای بیشتر و لوکس، مناسب برای کسانی که خواهان فضای بیشتر و تجمل هستند. • ویلاهای 7+ خوابه • لوکس نهایی: برای کسانی که به دنبال اوج زندگی لوکس با فضای کافی و ویژگی های منحصر به فرد هستند. امکانات رفاهی اجتماعی زندگی در یوتوپیا به معنای دسترسی به طیف گسترده ای از امکانات رفاهی در سطح جهانی است که تمام نیازهای شما را برآورده می کند. • زمین گلف: یک زمین گلف تماشایی برای علاقه مندان. • پارک ها: پارک های زیبا برای تفریح و استراحت. • زمین های ورزشی: امکاناتی برای فعالیت های مختلف ورزشی. • هتل ها و استراحتگاه ها: گزینه های مهمان نوازی در سطح جهانی در داخل جامعه. • ساحل مالیبو: یک تجربه ساحلی منحصر به فرد در داخل جامعه. • هیلز مال: یک مقصد خرید با انواع گزینه های خرده فروشی و غذاخوری. • تالاب های شفاف: تالاب های خیره کننده برای یک محیط آرام و دیدنی. مزایای زندگی در یوتوپیا • زندگی در یوتوپیا مزایای بی شماری را ارائه می دهد و آن را به یک انتخاب جذاب برای خریداران فهیم تبدیل می کند. • لوکس و آسایش: از لوکس و آسایش بی نظیر در خانه خود لذت ببرید. • سازگار با محیط زیست: از یک محیط سبز سرسبز لذت ببرید که پایداری و رفاه را تشویق می کند. • جامعه انحصاری: به یک جامعه انحصاری با تعداد محدودی ویلا بپیوندید تا از حریم خصوصی و انحصاری بودن اطمینان حاصل کنید. • دسترسی آسان به جاده های اصلی، مناطق تجاری و مقاصد تفریحی. تحویل مورد انتظار • سه ماهه چهارم 2026. یوتوپیا در داماك هیلز، دبی، ویترینی برای زندگی لوکس، نوآوری و پایدار است. یوتوپیا به لطف موقعیت مکانی عالی، ویژگی های منحصر به فرد و گزینه های مسکن مجلل، یک تجربه سبک زندگی بی نظیر را ارائه می دهد. چه یک خانه خانوادگی بزرگ بخواهید یا یک خلوتگاه مجلل، یوتوپیا ویلای ایده آل را برای شما دارد. در یوتوپیا سرمایه گذاری کنید و بخشی از یک جامعه منحصر به فرد و پر جنب و جوش شوید که در حال تعریف مجدد زندگی لوکس در دبی است.

وضعیت ساخت

مرحله
در حال ساخت

جزئیات پروژه

  • نوع: apartment, villa
  • تاریخ تکمیل: 2026-11-30

امکانات

Bicycle Track
Children's Play Area
Yoga room
Landscaped Parks
Landscaped Gardens
Gymnasium
Shared Pool
Shared Spa

جدول زمانی پروژه

  • Construction Started: 30/04/2024
  • Expected Completion: 30/11/2026

ویدیوهای پروژه

انواع واحد موجود از سازنده

APARTMENT

6 Bedrooms

Size: 25317 sq ft
شروع از ‎درهم ۲۴٬۵۵۷٬۰۰۰
Available Layouts
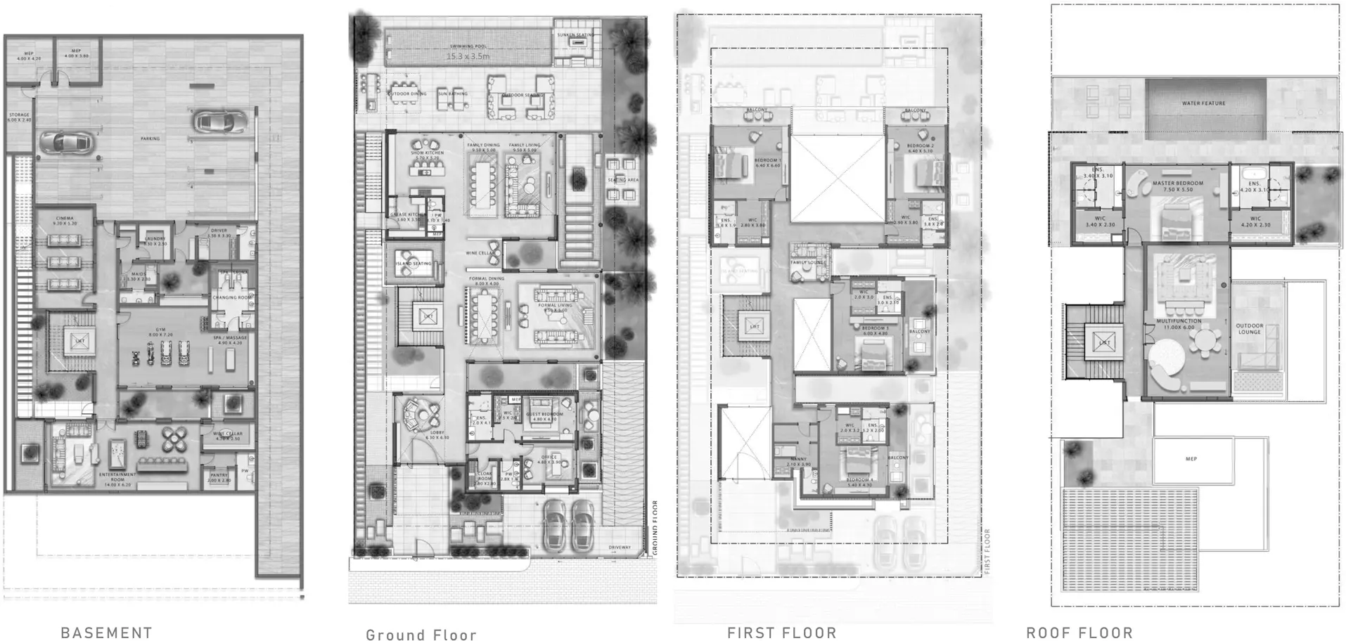
Layout Type Size (sqft) Floor Plan
Type C 25,317.00 View

APARTMENT

7 Bedrooms

Size: 18007 sq ft
شروع از ‎درهم ۲۴٬۱۱۲٬۰۰۰
Available Layouts
Layout Type Size (sqft) Floor Plan
Type A 18,007.00 View

VILLA

5 Bedrooms

Size: 13555 sq ft
شروع از ‎درهم ۲۴٬۱۱۲٬۰۰۰
Available Layouts
Layout Type Size (sqft) Floor Plan
Type V55 13,555.00 View

VILLA

6 Bedrooms

Size: 18007 - 25317 sq ft
شروع از ‎درهم ۲۴٬۱۱۲٬۰۰۰
Available Layouts
Layout Type Size (sqft) Floor Plan
Type H 25,317.00 View
Type B 25,317.00 View
Type D 25,317.00 View
Type I 25,317.00 View
Type E 25,317.00 View
Type A 25,317.00 View
Type J 25,317.00 View
Type G 25,317.00 View
Type F 25,317.00 View
Type B 18,007.00 View

VILLA

7 Bedrooms

Size: 18007 sq ft
شروع از ‎درهم ۲۴٬۱۱۲٬۰۰۰
Available Layouts
Layout Type Size (sqft) Floor Plan
Type V75 18,007.00 View

Option 1

down payment
20%
On Booking Date 20%
during construction
40%
Within 7 months (1% monthly) from booking date 5%
Within 8 months from booking date 5%
Within 17 months (1% monthly) from booking date 9%
Within 18 months from booking date 5%
Within 27 months (1% monthly) from booking date 9%
Within 28 months from booking date 5%
Within 30 months (1% monthly) from booking date 2%
handover
40%
On Completion 40%

Option 2

down payment
20%
20%
during construction
40%
40%
handover
40%
40%

ماشین حساب پرداخت ماهانه

5% 15% 25% 35% 50%
20% AED 0
میانگین فعلی امارات: ۳.۵٪ - ۶.۵٪
پرداخت ماهانه
AED 0
اصل + بهره
مبلغ وام
AED 0
کل بهره
AED 0
کل پرداخت
AED 0

📋 توجه:

این فقط یک تخمین است. نرخ‌ها و شرایط واقعی ممکن است بر اساس پروفایل اعتباری، سیاست‌های بانکی و شرایط فعلی بازار متفاوت باشد. هزینه‌های اضافی مانند بیمه، هزینه ثبت و کارمزد بانکی شامل نمی‌شود.

بررسی اجمالی طرح جامع یوتوپیا یوتوپیا، یک پروژه انحصاری توسط داماك پر properties، در داخل طرح جامع معتبر داماك هیلز واقع شده است. یوتوپیا با ارائه ویلاهای 5 تا 7 خوابه به سبک استراحتگاه، لوکس مدرن را با پایداری ترکیب می کند و سبک زندگی بی نظیری را برای ساکنان فراهم می کند. یوتوپیا که در جامعه پر جنب و جوش داماك هیلز واقع شده است، توسط فضای سبز سرسبز و امکانات رفاهی ممتاز احاطه شده است و آن را به یک انتخاب ایده آل برای خانواده ها و سرمایه گذاران تبدیل می کند. ویژگی های کلیدی موقعیت مکانی و جاذبه های نزدیک • داماك هیلز یک جامعه گلف مشهور در دبی است. • 21 دقیقه تا دبی مارینا، 24 دقیقه تا مرکز شهر دبی. • 28 دقیقه تا فرودگاه بین المللی دبی. • نزدیک به مرکز خرید امارات، اقامتگاه ساحلی جمیرا. امکانات رفاهی • باشگاه گلف بین المللی ترامپ دبی با آکادمی آموزشی و فروشگاه حرفه ای. • پارک های اجتماعی، زمین های ورزشی و مراکز تناسب اندام. • ساحل مالیبو، هیلز مال و تالاب های شفاف. • مزارع پایدار، پارک سگ و انواع امکانات تفریحی. • سوپرمارکت ها، مدارس در نزدیکی و دسترسی آسان به حمل و نقل عمومی.

موقعیت مکانی

Utopia Damac Hills Villas , DAMAC Hills

برنامه پرداخت یوتوپیا چیست؟

برنامه پرداخت یوتوپیا به شرح زیر ساختار یافته است: • 20% پیش پرداخت در زمان شروع فروش • 40% در طول ساخت و ساز، پرداخت شده در 7 قسط • 40% در زمان تحویل. این طرح انعطاف پذیری را در حین ایمن سازی سرمایه گذاری شما در طول فرآیند توسعه فراهم می کند.

تاریخ تحویل یوتوپیا چه زمانی است؟

تاریخ تحویل یوتوپیا برای نوامبر 2026 تعیین شده است. این پروژه مسکونی مجلل توسط داماك پر properties تا آن زمان آماده ارائه یک تجربه زندگی ممتاز به ساکنان خود خواهد بود.

آیا یوتوپیا یک سرمایه گذاری خوب است؟

یوتوپیا در داماك هیلز به دلیل موقعیت مکانی عالی، ویلاهای لوکس و امکانات رفاهی در سطح جهانی، یک سرمایه گذاری امیدوارکننده است. یوتوپیا با مجموعه محدودی از ویلاهای 5، 6 و 7 خوابه، یک تجربه زندگی انحصاری را در یک جامعه پر جنب و جوش ارائه می دهد. ساکنان از دسترسی آسان به بزرگراه های اصلی، یک زمین گلف در نزدیکی و نزدیکی به استراحتگاه ها، هتل ها و مراکز خرید لذت می برند. این پروژه دارای ویلاهای لوکس با طرح های منحصر به فرد، و همچنین یک زمین گلف، پارک ها، زمین های ورزشی و ساحل مالیبو است. این ترکیب از زندگی سطح بالا، پایداری و امکانات رفاهی متمرکز بر جامعه، یوتوپیا را به یک فرصت سرمایه گذاری عالی تبدیل می کند.

قیمت شروع یوتوپیا چقدر است؟

قیمت شروع یوتوپیا 24 میلیون درهم است.

صاحب یوتوپیا کیست؟

یوتوپیا متعلق به داماك پر properties است، یک توسعه دهنده املاک و مستغلات پیشرو که به دلیل ایجاد جوامع مسکونی لوکس و نوآورانه در دبی شناخته شده است. داماك پر properties به دلیل ارائه پروژه های با کیفیت بالا که تجربیات زندگی استثنایی را ارائه می دهند، مشهور است.

قیمت عرضه

‎درهم ۲۴٬۱۱۲٬۰۰۰

*قیمت‌ها ممکن است متفاوت باشند

اطلاعات کلیدی

تحویل 2026-11-30
انواع ملک apartment, villa
وضعیت در حال ساخت

سازنده

به این پروژه علاقه‌مند هستید؟

برای جزئیات بیشتر، قیمت و موجودی با سازنده تماس بگیرید.